Maison à rénover
AcheterMaison à rénover
© Julian SUAUPhoto 1 / 11
45 000€
ref 56/23/07/08
Secteur : Le Cheylard
Maison, 9 pièces
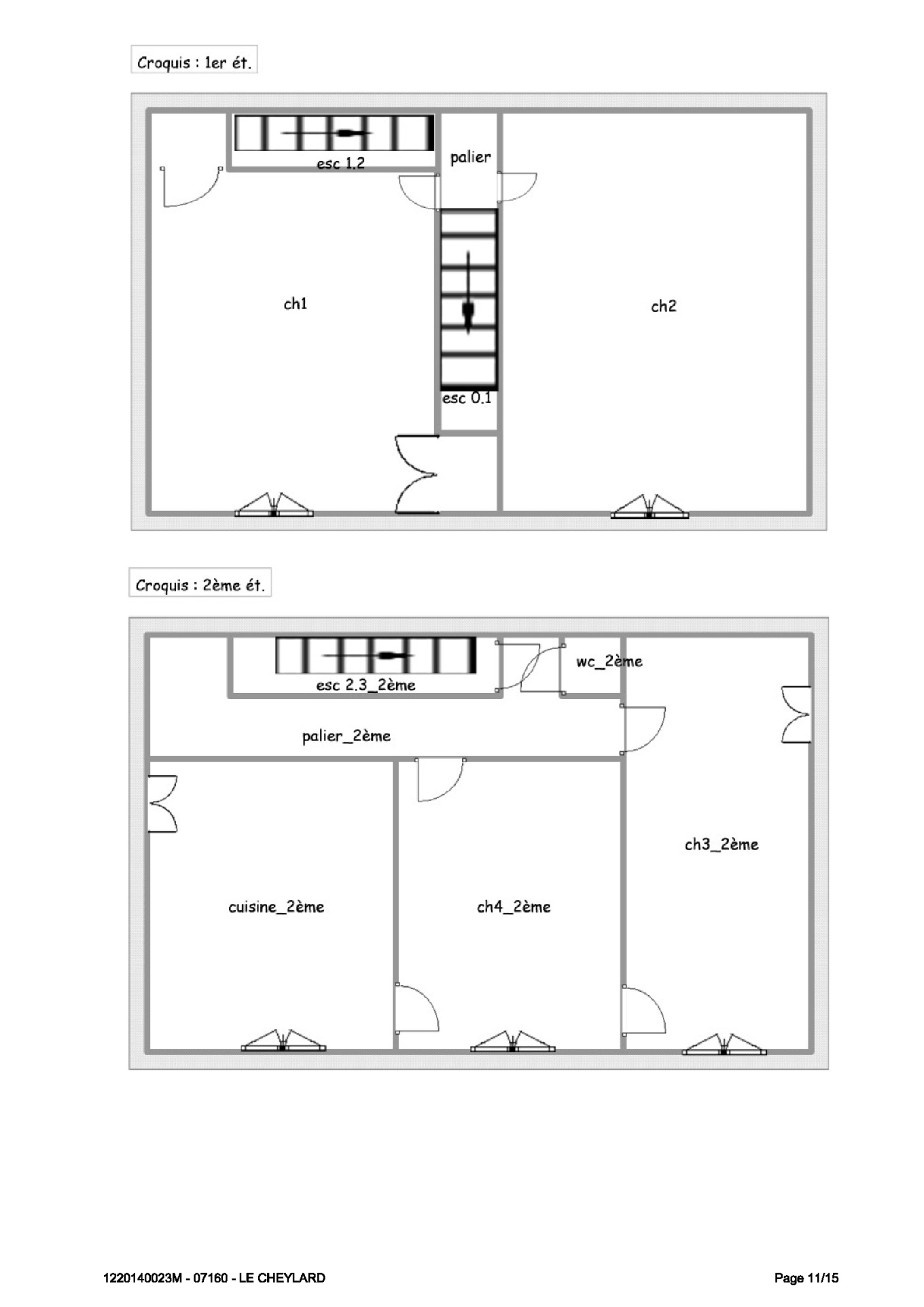
Maison en pierre de village, commerce à proximité, possibilité de plusieurs logements à réhabiliter entièrement, maison de 167 m2 environ sur trois niveaux + cave et grenier. Vu panoramique.
Votre contact Christophe CONDON : 07 71 72 69 41 www.agenceduplateau.fr
Les informations sur les risques auxquels ce bien est exposé sont disponibles sur le site Georisque - www.georisques.gouv.fr
| Surface habitable 167 m2 | Nb de pièces 9 | Nb de chambres 4 |
Informations générales :
- Taxe foncière395€
- VueDégagée
- ExpositionSud
Prix hors honoraires 41400€, honoraires de 3600€ à la charge de l'acquéreur, soit 8.70% du prix de vente.
Les informations sur les risques auxquels ce bien est exposé sont disponibles sur le site Géorisques : www.georisques.gouv.fr
Biens similaires
Calcul des mensualités crédit immobilier











